普通電機驅動慣性振動給料機

一、概述
該系列給料機的給料過程是利用特制的振動電機或兩臺電動機帶動激振器驅動給料槽沿傾斜方向作周期直線往復振動來實現,當給料槽振動的加速度垂直分量大于重力加速度時,槽中的料被拋起,并按照拋物線的軌跡向前跳躍運動,拋起和下落在瞬間完成,由于激振源的連續激振,給料槽連續振動,槽中的煤連續向前跳躍,以達到給料的目的。
二、用途
BZG系列普通電機驅動慣性振動給料機(化工給料機)是吸取了GZG系列、GZY系列振動給料機等機型的優點而開發的。該機是一種理想的高效低噪音給料機,采用低頻率大振幅振動,處理量大。適用于礦山、冶金、化工,建材等行業各種散狀物料的輸送,也適用于水份高,含量大的粘性物料。
.jpg)
三、主要技術參數
型號
槽體尺寸
寬×長×高(mm)
給料能力t/h
電機型號
功率(千瓦)
振動頻率(Hz)
振幅(雙)(mm)
重量
(公斤)
α=0°
α=10°
BZG1015
1000×1500×200
200
450
Y112M-6
2×1.5
16
12
998
BZG1020
1000×2000×200
200
450
2×2.2
1053
BZG1216
1200×1600×280
200
600
1050
BZG1220
1200×2000×280
200
600
1123
BZG1525
1500×2500×330
500
1200
Y132S-6
2×3
1850
BZG1530
1500×3000×330
500
1200
1992
BZG1825
1800×2500×330
800
1500
Y132M1-6
2×4
2180
BZG1830
1800×3000×330
800
1500
2327
四、型號說明

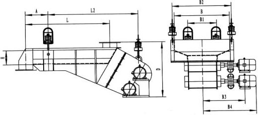
五、外形尺寸
型號
A
H
L
D
B
B3
B4
B1
L2
B2
BZG1015
400
288
1500
900
1000
649
949
600
1550
1200
BZG1020
500
288
2000
900
1000
649
949
600
1950
1200
BZG1216
400
288
1600
1000
1200
749
949
600
1650
1400
BZG1220
500
288
2000
1000
1200
749
949
600
1950
1400
BZG1525
800
330
2500
1170
1500
900
1146
907
2210
1735
BZG1530
800
330
3000
1170
1500
900
1146
907
2710
1735
BZG1825
800
330
2500
1170
1800
1079
1336
1207
2210
2035
BZG1830
800
330
3000
1170
1800
1079
1336
1207
2710
2035

BZG系列普通電機驅動慣性振動給料機(封閉形)外形尺寸:
型號
A
H
L
D
B
B3
B4
B1
L2
B2
GZKF1015
400
288
1500
1000
1000
649
949
600
1700
1200
GZKF1020
500
288
2000
1000
1000
649
949
600
2100
1200
GZKF1216
400
288
1600
1100
1200
749
949
600
1800
1400
GZKF1220
500
288
2000
1100
1200
749
949
600
2100
1400
GZKF1525
800
330
2500
1290
1500
900
1146
907
2385
1735
GZKF1530
800
330
3000
1290
1500
900
1146
907
2885
1735
GZKF1825
800
330
2500
1290
1800
1079
1336
1207
2385
2035
GZKF1830
800
330
3000
1290
1800
1079
1336
1207
2885
2035

六、安裝與調試
1、本產品安裝分為坐式和懸掛式安裝。作為正常給料可以-10°安裝,對粘性或含水量較高的物料可-15°安裝。但用于配料或定量給料時,為保證給料精度,建議水平安裝。
2、為保證給料機的正常工作,應盡量減少料倉壓力的影響,建議設備使用時配置相應的溜嘴。
3、給料槽和上部密封罩、側面支架等不參振物體間的距離應大于50mm。兩臺電動機軸線應相應對準振動器的轉動軸。
4、座式給料機安裝前,先把現場基礎與給料機安裝圖對照,檢查后,預埋鋼板,鋼板厚度為20mm,平面度不大于1.5‰mm。
5、給料機安裝完畢,調整好相對位置,電動機的軸線應低于激振器軸線2-3mm。四個減振彈簧的壓縮量不得超過±3mm,調整好后把彈簧支座、電機支架與預埋鋼板緊固或點焊牢固。
6、給料機的兩臺電機的轉向必須相反。
7、安裝完畢運行2-4小時,機體運行平穩,橫擺不大于0.5mm,無異常噪音后,在緊固螺栓方向投入使用。
8、在使用中若處理能力不夠,在允許的情況下,可調整激振器的激振力的大小,以達到理想效果。
激振力的調整:
a.卸下防護罩
b.將兩外偏心塊擰松
c.同相位、同角度、調節兩外偏聽偏心塊
d.擰緊調節螺栓,裝上防護罩
維護與保養:
a.給料機在工作過程中,應注意槽體運動是否平穩,如發現運轉不正常或有異常聲音,應立即停機檢查。
b.激振器每月加注一次3#鋰基潤滑脂,軸承每年應檢查清理一次,檢看軸承的磨損程度,必要時及時更換維修。
c.應經常檢查連接部位的緊固螺栓是否松動,應及時消除隱患。

一、概述
該系列給料機的給料過程是利用特制的振動電機或兩臺電動機帶動激振器驅動給料槽沿傾斜方向作周期直線往復振動來實現,當給料槽振動的加速度垂直分量大于重力加速度時,槽中的料被拋起,并按照拋物線的軌跡向前跳躍運動,拋起和下落在瞬間完成,由于激振源的連續激振,給料槽連續振動,槽中的煤連續向前跳躍,以達到給料的目的。
二、用途
BZG系列普通電機驅動慣性振動給料機(化工給料機)是吸取了GZG系列、GZY系列振動給料機等機型的優點而開發的。該機是一種理想的高效低噪音給料機,采用低頻率大振幅振動,處理量大。適用于礦山、冶金、化工,建材等行業各種散狀物料的輸送,也適用于水份高,含量大的粘性物料。
.jpg)
三、主要技術參數
型號 |
槽體尺寸 寬×長×高(mm) |
給料能力t/h | 電機型號 | 功率(千瓦) | 振動頻率(Hz) | 振幅(雙)(mm) | 重量 (公斤) |
|
| α=0° | α=10° | |||||||
| BZG1015 | 1000×1500×200 | 200 | 450 | Y112M-6 | 2×1.5 | 16 | 12 | 998 |
| BZG1020 | 1000×2000×200 | 200 | 450 | 2×2.2 | 1053 | |||
| BZG1216 | 1200×1600×280 | 200 | 600 | 1050 | ||||
| BZG1220 | 1200×2000×280 | 200 | 600 | 1123 | ||||
| BZG1525 | 1500×2500×330 | 500 | 1200 | Y132S-6 | 2×3 | 1850 | ||
| BZG1530 | 1500×3000×330 | 500 | 1200 | 1992 | ||||
| BZG1825 | 1800×2500×330 | 800 | 1500 | Y132M1-6 | 2×4 | 2180 | ||
| BZG1830 | 1800×3000×330 | 800 | 1500 | 2327 | ||||
四、型號說明

五、外形尺寸
| 型號 | A | H | L | D | B | B3 | B4 | B1 | L2 | B2 |
| BZG1015 | 400 | 288 | 1500 | 900 | 1000 | 649 | 949 | 600 | 1550 | 1200 |
| BZG1020 | 500 | 288 | 2000 | 900 | 1000 | 649 | 949 | 600 | 1950 | 1200 |
| BZG1216 | 400 | 288 | 1600 | 1000 | 1200 | 749 | 949 | 600 | 1650 | 1400 |
| BZG1220 | 500 | 288 | 2000 | 1000 | 1200 | 749 | 949 | 600 | 1950 | 1400 |
| BZG1525 | 800 | 330 | 2500 | 1170 | 1500 | 900 | 1146 | 907 | 2210 | 1735 |
| BZG1530 | 800 | 330 | 3000 | 1170 | 1500 | 900 | 1146 | 907 | 2710 | 1735 |
| BZG1825 | 800 | 330 | 2500 | 1170 | 1800 | 1079 | 1336 | 1207 | 2210 | 2035 |
| BZG1830 | 800 | 330 | 3000 | 1170 | 1800 | 1079 | 1336 | 1207 | 2710 | 2035 |

BZG系列普通電機驅動慣性振動給料機(封閉形)外形尺寸:
型號
A
H
L
D
B
B3
B4
B1
L2
B2
GZKF1015
400
288
1500
1000
1000
649
949
600
1700
1200
GZKF1020
500
288
2000
1000
1000
649
949
600
2100
1200
GZKF1216
400
288
1600
1100
1200
749
949
600
1800
1400
GZKF1220
500
288
2000
1100
1200
749
949
600
2100
1400
GZKF1525
800
330
2500
1290
1500
900
1146
907
2385
1735
GZKF1530
800
330
3000
1290
1500
900
1146
907
2885
1735
GZKF1825
800
330
2500
1290
1800
1079
1336
1207
2385
2035
GZKF1830
800
330
3000
1290
1800
1079
1336
1207
2885
2035

六、安裝與調試
1、本產品安裝分為坐式和懸掛式安裝。作為正常給料可以-10°安裝,對粘性或含水量較高的物料可-15°安裝。但用于配料或定量給料時,為保證給料精度,建議水平安裝。
2、為保證給料機的正常工作,應盡量減少料倉壓力的影響,建議設備使用時配置相應的溜嘴。
3、給料槽和上部密封罩、側面支架等不參振物體間的距離應大于50mm。兩臺電動機軸線應相應對準振動器的轉動軸。
4、座式給料機安裝前,先把現場基礎與給料機安裝圖對照,檢查后,預埋鋼板,鋼板厚度為20mm,平面度不大于1.5‰mm。
5、給料機安裝完畢,調整好相對位置,電動機的軸線應低于激振器軸線2-3mm。四個減振彈簧的壓縮量不得超過±3mm,調整好后把彈簧支座、電機支架與預埋鋼板緊固或點焊牢固。
6、給料機的兩臺電機的轉向必須相反。
7、安裝完畢運行2-4小時,機體運行平穩,橫擺不大于0.5mm,無異常噪音后,在緊固螺栓方向投入使用。
8、在使用中若處理能力不夠,在允許的情況下,可調整激振器的激振力的大小,以達到理想效果。
激振力的調整:
a.卸下防護罩
b.將兩外偏心塊擰松
c.同相位、同角度、調節兩外偏聽偏心塊
d.擰緊調節螺栓,裝上防護罩
維護與保養:
a.給料機在工作過程中,應注意槽體運動是否平穩,如發現運轉不正常或有異常聲音,應立即停機檢查。
b.激振器每月加注一次3#鋰基潤滑脂,軸承每年應檢查清理一次,檢看軸承的磨損程度,必要時及時更換維修。
c.應經常檢查連接部位的緊固螺栓是否松動,應及時消除隱患。


